El Consell delega las competencias a Dénia para el nuevo Raquel Payá
![[Img #26287]](http://deniadigital.es/upload/images/09_2020/129_planonuevoraquelpaya.jpg)
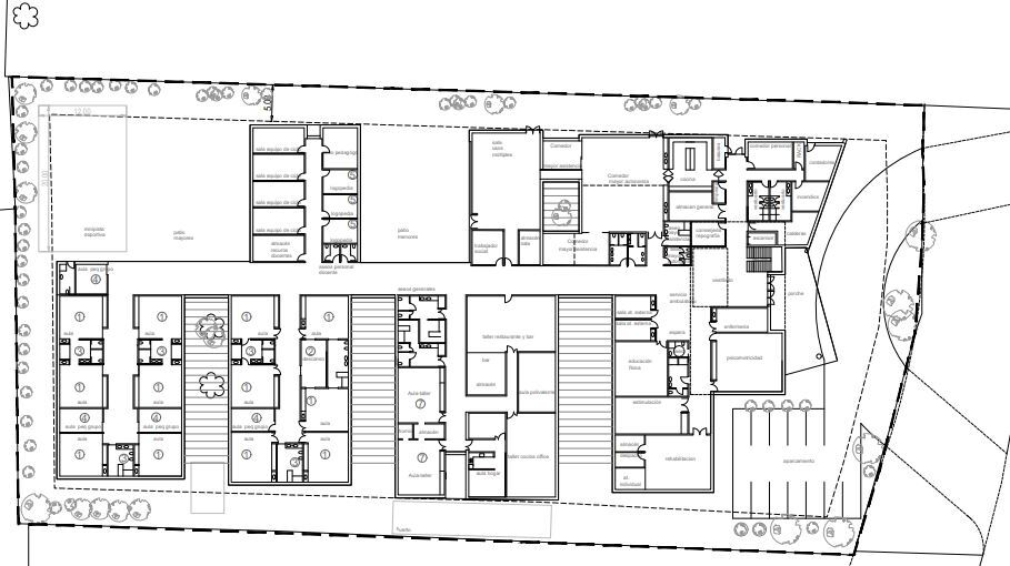
El largo camino para que el nuevo colegio Raquel Payá sigue su curso. Este viernes se produjo la delegación de competencias de la Conselleria de Educación al Ayuntamiento de Dénia para la construcción del centro.
Una vez recibidas, el pleno del Ayuntamiento deberá refrendarlo y entonces la maquinaria municipal se podrá poner en marcha para cumplir otro de los hitos. El primero será la convocatoria de un concurso público para redactar el proyecto definitivo, el siguiente será la convocatoria del concurso para la selección de la empresa encargada de construirlo.
Esta delegación de competencias fue anunciada por el secretario autonómico de Educación, Miquel Soler, a través de su cuenta de tuiter. Un anuncio que acompañó por el plano que tendrá el futuro complejo del Raquel Payá, un centro que acoge a los alumnos con necesidades especiales.
Seguimos sumando con #Edificant.
Competencias delegadas al @ayto_denia y al @AytoAlmoradi para construir el CEE. Púb. Comarcal Raquel Payà de #Dénia (6'1 millones) y para reformar y ampliar el CEIP Canales y Martínez de #Almoradí (1'8 millones)#AulesDignes #LEducacióQueSuma/+ pic.twitter.com/sFBQGSXGU5
— miguel soler (@miguelsolerg) September 18, 2020
El colegio se levantará en el terreno que ocupan los viveros municipales, en el camí de la Bota, el coste inicial supera los seis millones de euros.
![[Img #26287]](http://deniadigital.es/upload/images/09_2020/129_planonuevoraquelpaya.jpg)
El largo camino para que el nuevo colegio Raquel Payá sigue su curso. Este viernes se produjo la delegación de competencias de la Conselleria de Educación al Ayuntamiento de Dénia para la construcción del centro.
Una vez recibidas, el pleno del Ayuntamiento deberá refrendarlo y entonces la maquinaria municipal se podrá poner en marcha para cumplir otro de los hitos. El primero será la convocatoria de un concurso público para redactar el proyecto definitivo, el siguiente será la convocatoria del concurso para la selección de la empresa encargada de construirlo.
Esta delegación de competencias fue anunciada por el secretario autonómico de Educación, Miquel Soler, a través de su cuenta de tuiter. Un anuncio que acompañó por el plano que tendrá el futuro complejo del Raquel Payá, un centro que acoge a los alumnos con necesidades especiales.
Seguimos sumando con #Edificant.
Competencias delegadas al @ayto_denia y al @AytoAlmoradi para construir el CEE. Púb. Comarcal Raquel Payà de #Dénia (6'1 millones) y para reformar y ampliar el CEIP Canales y Martínez de #Almoradí (1'8 millones)#AulesDignes #LEducacióQueSuma/+ pic.twitter.com/sFBQGSXGU5— miguel soler (@miguelsolerg) September 18, 2020
El colegio se levantará en el terreno que ocupan los viveros municipales, en el camí de la Bota, el coste inicial supera los seis millones de euros.























Normas de participación
Esta es la opinión de los lectores, no la de este medio.
Nos reservamos el derecho a eliminar los comentarios inapropiados.
La participación implica que ha leído y acepta las Normas de Participación y Política de Privacidad
Normas de Participación
Política de privacidad
Por seguridad guardamos tu IP
216.73.216.36